播放速度
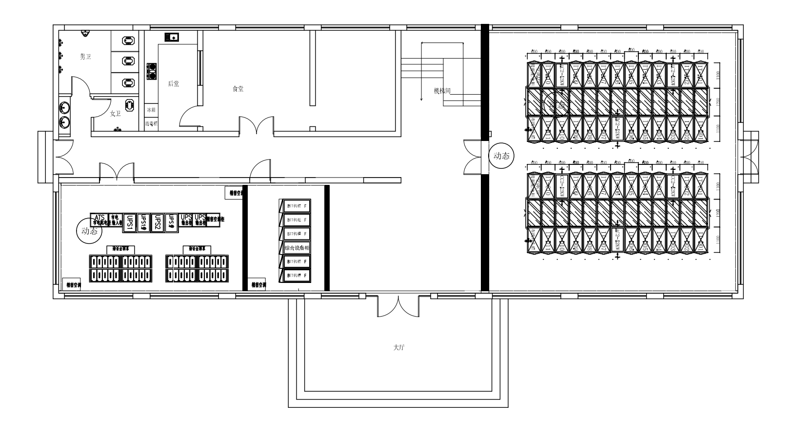
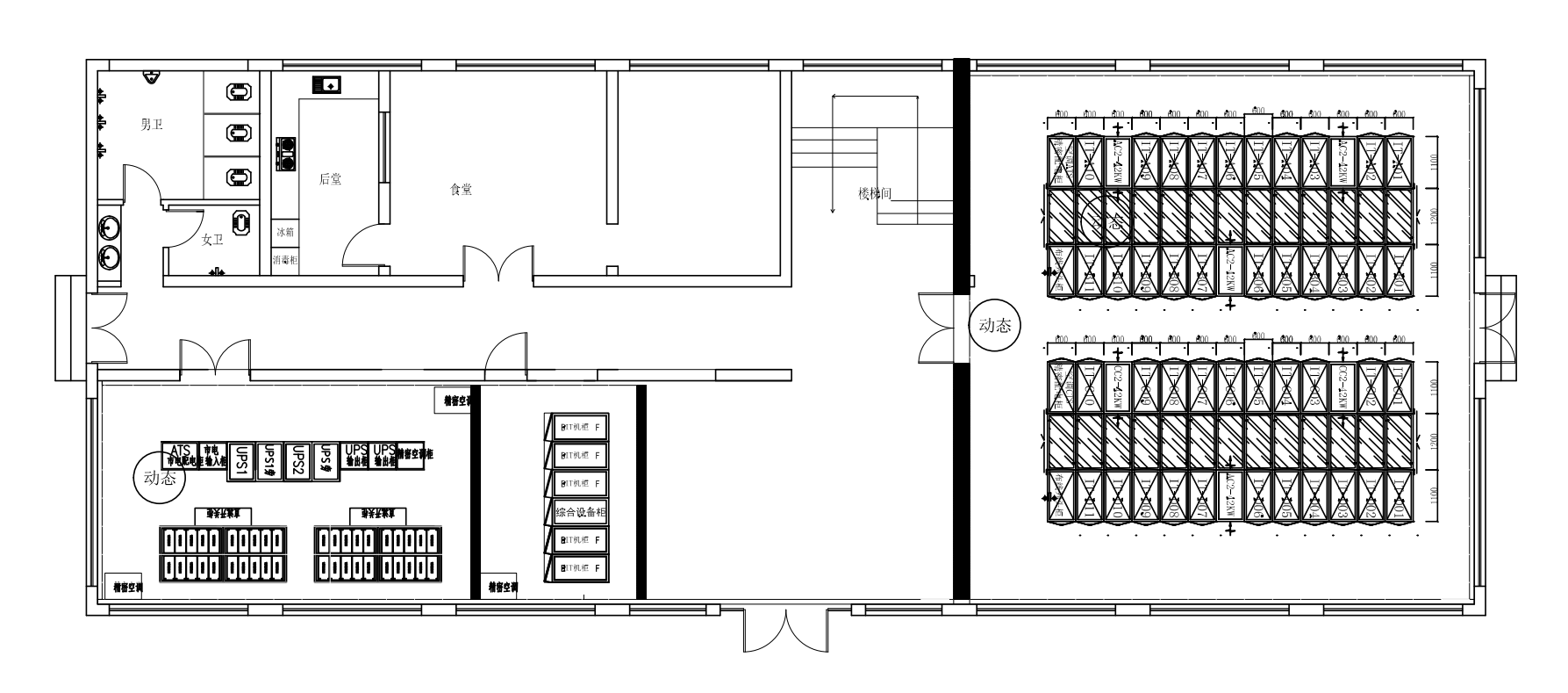
边缘云甘肃陇南IDC数据中心
现阶段,最佳创业项目,无需投资、市场巨大、容易签单、快速赚钱:15153588808/4000191169
边缘云甘肃陇南IDC数据中心
浏览量:2789

3
场景选择
Scene select
全屏
full screen
  • 主机房
  • 模块内部
  • 配电间

关闭